公司:郑州纽路普科技有限公司
联系人:牛欲晓
电话:13273711227
电话:0371-67986500 55603183 55603283
网址:hd2sso7pf.theoriesofhappiness.com
邮箱:zznloop@163.com
地址:郑州市高新区冬青街12号
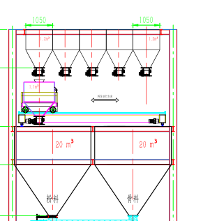
无人值守自动布料车示意图:



无人值守布料车生产线
自动配料系统发展到现在,已经比较成熟。相对落后的是上料系统,即如何把物料加入到料仓内。目前通用的做法有行车方式、斗提加皮带(螺旋)方式、风力输送方式等。这些方式各有长短。比如行车方式投资小但自动化程度低,斗提加皮带(螺旋)方式自动化程度高但适应性差且维护工作量大,风力输送适合粉料但不适于颗粒料。
我公司设计开发的无人值守自动布料系统很好的解决了配料系统的上料问题。其特点是投资小、设备简单、适应性强、维护工作量小及自动化程度高而且可以与中控系统紧密连接,可方便的实现出入库管理。
我公司为用户定制设计、制造“全自动布料小车”、“全自动布料控制系统”等,并提供“无人值守自动布料生产线”设计、咨询及成套交钥匙服务。


0371-55603183
0371-55603283
132-7371-1227